La válvula moduladora externa EEV debe instalarse en la tubería de líquido, entre 2m y 5m de la unidad. Esto permite desplazar esta fuente de sonido
fuera de la habitación, alcanzando altos niveles de silencio para el perfecto confort en hoteles, comercios u oficinas

En condiciones de calefacción y refrigeración, la unidad puede suministrar un gran volumen de aire para calentar y enfriar rápidamente en todas partes de la habitación interior.



La activación de este modo maximiza la velocidad del ventilador, enfriando o calentando rápidamente la habitación a la temperatura deseada.


Los filtros de aire acondicionado pueden tener revestimientos con propiedades antimicrobianas. Estos revestimientos ayudan a inhibir el crecimiento de moho, bacterias y otros microorganismos en
el filtro, lo que contribuye a mejorar la calidad del aire interior.
| Especificaciones | Unidades | MISN- 05X1EV2AD(K) |
MISN- 07X1EV2AD(K) |
MISN- 09X1EV2AD(K) |
MISN- 12X1EV2AD(K) |
MISF- 05X1EV2AD(K) |
MISF- 07X1EV2AD(K) |
MISF- 09X1EV2AD(K) |
MISF- 12X1EV2AD(K) |
| Capacidad | |||||||||
| Refrigeración | kW | 1,50 | 2,20 | 2,80 | 3,60 | 1,50 | 2,20 | 2,80 | 3,60 |
| Calefacción | kW | 1,70 | 2,50 | 3,20 | 4,00 | 1,70 | 2,50 | 3,20 | 4,00 |
| Parámetros eléctricos | |||||||||
| Alimentación | Ph/V/Hz | 1/220-240/50/60 | |||||||
| Ventilación | |||||||||
| Caudal de aire (H/M/L) | m3/h | 500/430/370 | 550/480/420 | 600/530/470 | 630/560/500 | 500/430/370 | 550/480/420 | 600/530/470 | 630/560/500 |
| Presión sonora (H/M/L) |
dB(A) | 33/31/29 | 35/31/29 | 36/31/29 | 37/33/29 | 33/31/29 | 35/31/29 | 36/31/29 | 37/33/29 |
| Potencia sonora (H/M/L) |
dB(A) | 855x208x280 | 855x208x280 | 855x208x280 | 855x208x280 | 49/46/41 | 50/47/42 | 52/48/44 | 54/51/50 |
| Instalación - Dimensiones | |||||||||
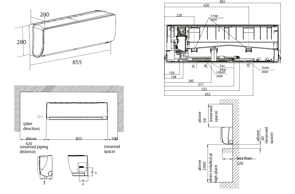
| Dimensiones netas (AnxPrxAl) |
mm | 1054x279x355 | 855x208x280 | ||||||
| Unidad embalada Dimensiones (AnxPrxAl) |
mm | 954x279x355 | 954x279x355 | ||||||
| Peso neto/bruto |
Kg | 9,9/14,2 | 9,9/14,2 | 9,9/14,2 | 9,9/14,2 | 9,9/12,0 | 9,9/12,0 | 9,9/12,0 | 9,9/12,0 |
| Ø Tubo de líquido | mm (pulgadas) |
6,35 (1/4) | 6,35 (1/4) | 6,35 (1/4) | 6,35 (1/4) | 6,35 (1/4) | 6,35 (1/4) | 6,35 (1/4) | 6,35 (1/4) |
| Ø Tubo de gas | mm (pulgadas) |
9,52 (3/8) | 9,52 (3/8) | 9,52 (3/8) | 12,70 (1/2) | 9,52 (3/8) | 9,52 (3/8) | 9,52 (3/8) | 12,70 (1/2) |
MISN-05X1EV2AD MISN-07X1EV1AA MISN-09X1EV2AD MISN-12X1EV2AD MISF-05X1EV2AD MISF-07X1EV2AD MISF-09X1EV2AD MISF-12X1EV2AD
