Única entrada de aire lateral, puede abrirse para introducir aire fresco exterior, mejorar la calidad del aire interior.


Adopta tecnología avanzada de aviación de ventilador espiral AL de TRES DIMENSIONES y diseño de conducto de aire en forma de turbina, reduce en gran medida la resistencia interna, gran volumen de aire, bajo ruido, consigue un funcionamiento silencioso.

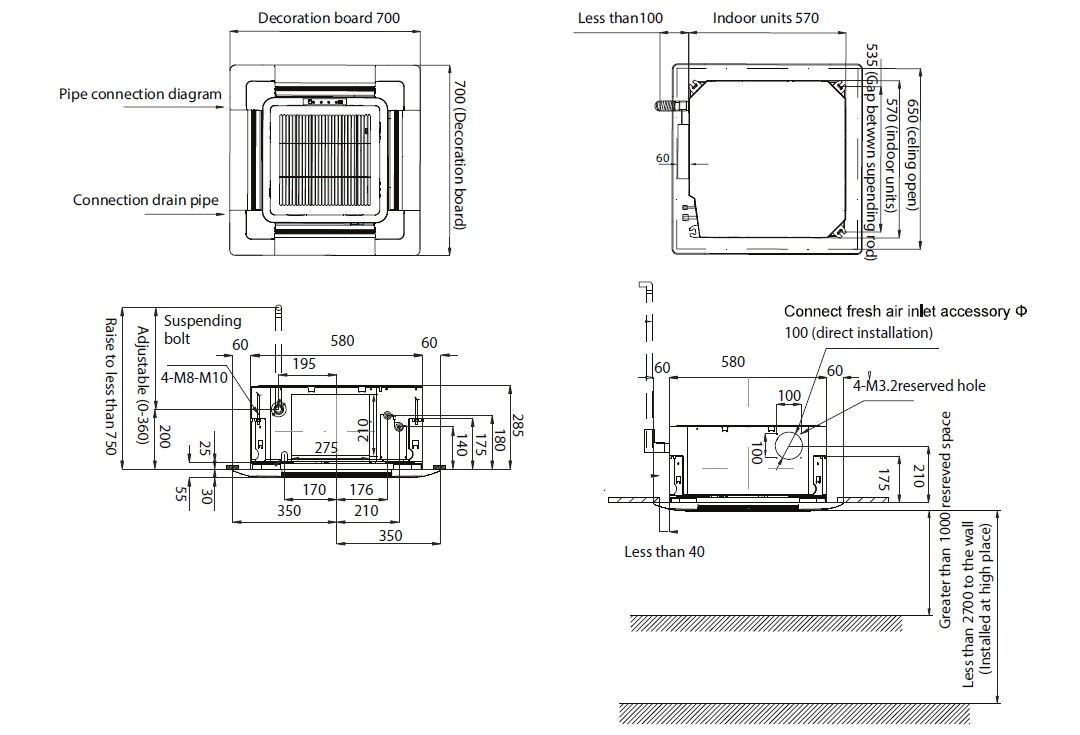
Bomba de drenaje estándar, la elevación es de 700 mm y el interruptor de flotador incorporado, conveniente para cooperar con la situación real de descarga de agua condensada de aire acondicionado.
Los casetes de techo ofrecen una salida de aire de gran caudal que garantiza un aire acondicionado eficaz incluso en habitaciones con techos de hasta 4 m de altura.


El diseño de las rejillas facilita la distribución del aire al crear un hueco entre el chasis y el techo, lo que permite una dispersión del flujo de aire amplia y generalizada.
Los modelos de cassette de techo presentan una altura de cuerpo delgada para una instalación suave y estética incluso en espacios plenum estrechos.


En esta configuración, una unidad actúa como "maestra" mientras que las demás actúan como "esclavas" que siguen los ajustes de la unidad maestra.
| Especificaciones | Unidades | MIBC-05X1EV1AA | MIBC-07X1EV1AA | MIBC-09X1EV1AA | MIBC-12X1EV1AA | MIBC-16X1EV1AA |
| Capacidad | ||||||
| Refrigeración | kW | 1,50 | 2,20 | 2,80 | 3,60 | 4,50 |
| Calefacción | kW | 1,70 | 2,50 | 3,20 | 4,00 | 5,00 |
| Parámetros eléctricos | ||||||
| Alimentación | Ph/V/Hz | 1/220~230/50/60 | ||||
| Ventilación | ||||||
| Caudal de aire (H/M/L) | m3/h | 650/540/430 | 700/590/480 | |||
| Presión sonora (H/M/L) |
dB(A) | 32/30/29 | 32/30/29 | 32/30/29 | 33/30/29 | 33/30/29 |
| Potencia sonora (H/M/L) |
dB(A) | 45/43/42 | 46/44/43 | 46/44/43 | 46/44/43 | 47/44/43 |
| Instalación - Dimensiones | ||||||
| Dimensiones netas (AnxPrxAl) |
mm | 570x570x260 | ||||
| Unidad embalada dimensiones (AxPxH) |
mm | 718x680x380 | ||||
| Peso neto/bruto |
Kg | 16,0/19,0 | 16,0/19,0 | 16,0/19,0 | 19,0/22,0 | 19,0/22,0 |
| Ø Tubo de líquido | mm (pulgadas) | 6,35 (1/4) | 6,35 (1/4) | 6,35 (1/4) | 6,35 (1/4) | 6,35 (1/4) |
| Ø Tubo de gas | mm (pulgadas) | 9,52 (3/8) | 9,52 (3/8) | 9,52 (3/8) | 12,70 (1/2) | 12,70 (1/2) |
| Раnel | ||||||
| Modelo | MB-700IB | MB-700IB | MB-700IB | MB-700IB | MB-700IB | |
| Panel Dimensiones netas (AnxPrxAl) |
mm | 700x700x60 | 700x700x60 | 700x700x60 | 700x700x60 | 700x700x60 |
| Panel Dimensiones del embalaje (AnxPrxAl) |
mm | 740x740x115 | 740x740x115 | 740x740x115 | 740x740x115 | 740x740x115 |
| Panel Peso neto/bruto |
Kg | 2,8/4,5 | 2,8/4,5 | 2,8/4,5 | 2,8/4,5 | 2,8/4,5 |
Dimensiones
MIDS-05X1EV1AA MIDS-07X1EV1AA MIDS-09X1EV1AA MIDS-12X1EV1AA MIDS-16X1EV1AA
